Our Clubhouse
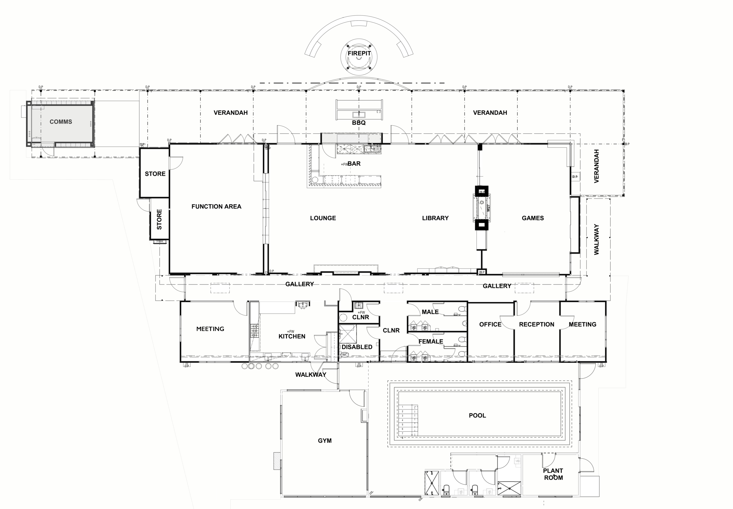
We designed the Margaret River Clubhouse to reflect the aura of the region. So you will see strong natural elements of stone and wood that have been used from our site and the greater region, combined with a functionality that makes the whole area pleasure to be in.
Our main theme is to have an area that flows from inside to outside seamlessly to cater for not only the different seasons of the year but also the different interests of our guests.
The Clubhouse is orientated north to maximise the winter sun and shelter from the stronger winds creating an environmentally friendly design.
We have our main entry area with lounge bar and library. A double sided stone fireplace will give you a country comfort to either play pool, watch a movie or get involved with the other activities that change through the day from morning coffees through to afternoon drinks. It really is a total change of life.
So whether you are cooking at the outdoor fire pit for a group of friends or relaxing reading in the library by the fire you have your space but still be part of the overall mood of the Clubhouse.
If you are looking for something more active, Stage 2 has been completed with our indoor heated pool and larger gym.
Need more information?
We have an extensive list of Frequently asked questions. Click below to view them, or get in touch with out team.
Resident Stories
Click on the images below to read some our some of our residents stories.
Our first home arrives on site, Margaret River
Bill Taplin moves into the Village…
Trudy Jones
Robyn and Alan’s Lifestyle at the Village…
Have Questions?
We have an extensive list of Frequently asked questions. Click below to view them, or get in touch with out team.
Discover Our Homes
Set minutes away from the Margaret River township, is this micro-climate of all that the region has to offer.







